Ιδιαίτερη ικανοποίηση εκφράζεται από την δημοτική Αρχή των Ανωγείων για την προώθηση του έργου αποκατάστασης του χιονοδρομικού κέντρων της Νίδας, το οποίο εδώ και χρόνια έχει εγκαταλειφτεί. Την ένταξη του έργο στο Επιχειρησιακό Πρόγραμμα Κρήτης 2014-2020, ανακοίνωσε πριν λίγους μήνες ο περιφερειάρχης Κρήτης κ. Σταύρος Αρναουτάκης και αφορά την αναβάθμιση και τον εξοπλισμό του χιονοδρομικού Ανωγείων και την μετατροπή του σε ορεινό καταφύγιο, υπέγραψε.
Σύμφωνα με τον Δήμαρχο Ανωγείων κ. Σωκράτη Κεφαλογιάννη, το έργο έχει προϋπολογισμό 795.301 ευρώ, θα το υλοποιήσει η Περιφέρεια Κρήτης-ΠΕ Ρεθύμνου για λογαριασμό του Δήμου Ανωγείων και αφορά το κέντρο εναλλακτικών αθλητικών τουριστικών δραστηριοτήτων και περιβαλλοντικών παρατηρήσεων του Δήμου, με στόχο την πλήρη αξιοποίηση του χώρου, τόσο κατά την χειμερινή όσο και κατά την θερινή περίοδο.
Σύμφωνα με τη στόχευση του Δήμου Ανωγείων, την χειμερινή περίοδο προβλέπεται η επίσκεψη και φιλοξενία σχολείων, συλλόγων και περιβαλλοντικών ομάδων, κυρίως για περιβαλλοντική εκπαίδευση και εκπαίδευση σε χιονοδρομικές αθλοπαιδιές. Οι καλοκαιρινές δραστηριότητες περιλαμβάνουν βραδιές περιβαλλοντικής εκπαίδευσης και περιβαλλοντικών παρατηρήσεων σε τοποθεσίες πλησίον του κέντρου με ιστορικό ενδιαφέρον, όπως το Ιδαίον 'Αντρον καθώς και εντός της περιοχής Natura, όπου βρίσκεται το κέντρο.
Όπως τόνισε στην εφημερίδα μας ο Δήμαρχος κ. Κεφαλογιάννης, θα ολοκληρωθούν οι εγκαταλελειμμένες σήμερα κτηριακές υποδομές που βρίσκονται στη θέση του παλιού χιονοδρομικού και θα γίνει προμήθεια του απαραίτητου εξοπλισμού ώστε ο χώρος να λειτουργήσει ως ορεινό καταφύγιο το οποίο θα αποτελεί χώρο στάσης και ενημέρωσης επισκεπτών του ορεινού όγκου Ψηλορείτη θα παρέχει την δυνατότητα άσκησης ψυχαγωγικών φυσιολατρικών δραστηριοτήτων και την εφαρμογή προγραμμάτων περιβαλλοντικής εκπαίδευσης σε συνδυασμό με άσκηση δραστηριοτήτων βουνού σε ομάδες επισκεπτών και μαθητών από όλη την Κρήτη.
Αναλυτικότερα το προτεινόμενο έργο περιλαμβάνει 2 υποέργα:
Α. οικοδομικές εργασίες
- αναβάθμιση ηλεκτρομηχανολογικών εγκαταστάσεων
- τοποθέτηση θερμομονωτικών κουφωμάτων αλουμινίου
- επικάλυψη δώματος με την αναγκαία ενεργειακή αναβάθμιση.
- ανακατασκευή χώρων υγιεινής
- εσωτερικά κουφώματα - ερμάρια και λοιπές ξυλουργικές εργασίες
- διαμόρφωση περιβάλλοντος χώρου
Β. εξοπλισμός
- απαραίτητος λειτουργικός μηχανολογικός εξοπλισμός
- έπιπλα και εξοπλισμός διημέρευσης.
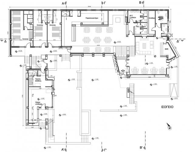
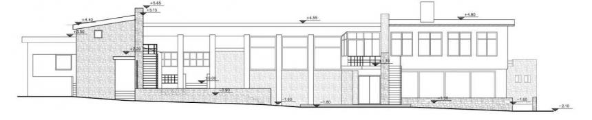
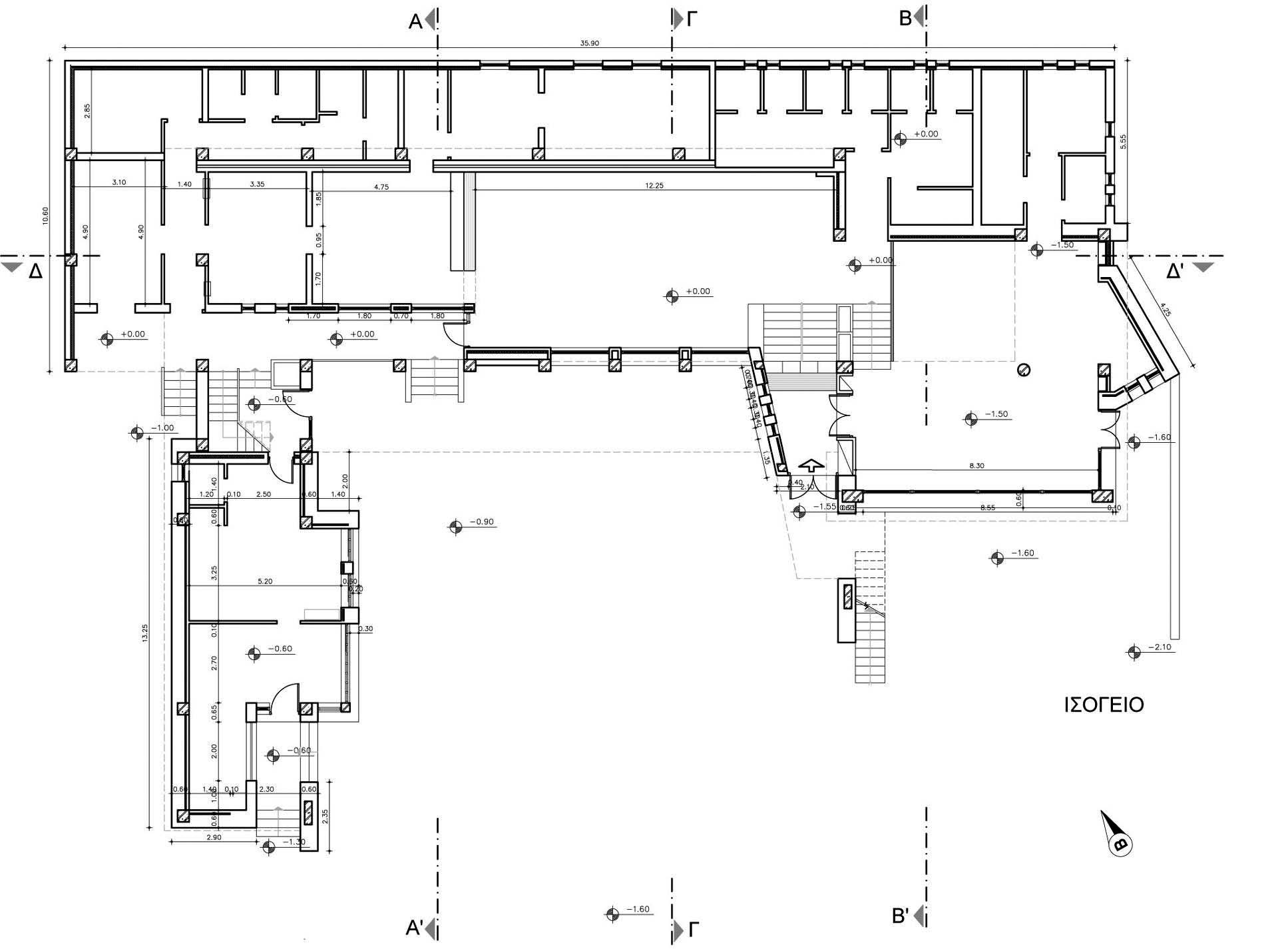
Το κέλυφος του κτιρίου παραμένει ως έχει και εσωτερικά γίνονται οι ελάχιστες αναγκαίες αλλαγές και διαρρυθμίσεις για να φιλοξενήσουν τις προτεινόμενες χρήσεις.
Εξωτερικά θα γίνουν οι αναγκαίες προσαρμογές για την διευκόλυνση της κίνησης των επισκεπτών. Προβλέπεται η δυνατότητα πρόσβασης ΑΜΕΑ.
Λειτουργικά το κτίριο θα περιλαμβάνει ξενώνες, ενιαίους χώρους με καθιστικά, παρασκευαστήριο, βοηθητικούς χώρους, αίθουσα πρώτων βοηθειών και μπαρ.




